• Work
  • Experience
  • About
  • Contact

AGENDA ARCHITECTURE

  • Work
  • Experience
  • About
  • Contact
190806_AA_First Church_Banner.jpg

Christian Science Reading Room

Location: Austin, TX
Status: Ongoing
Size: 1,030 SF

 

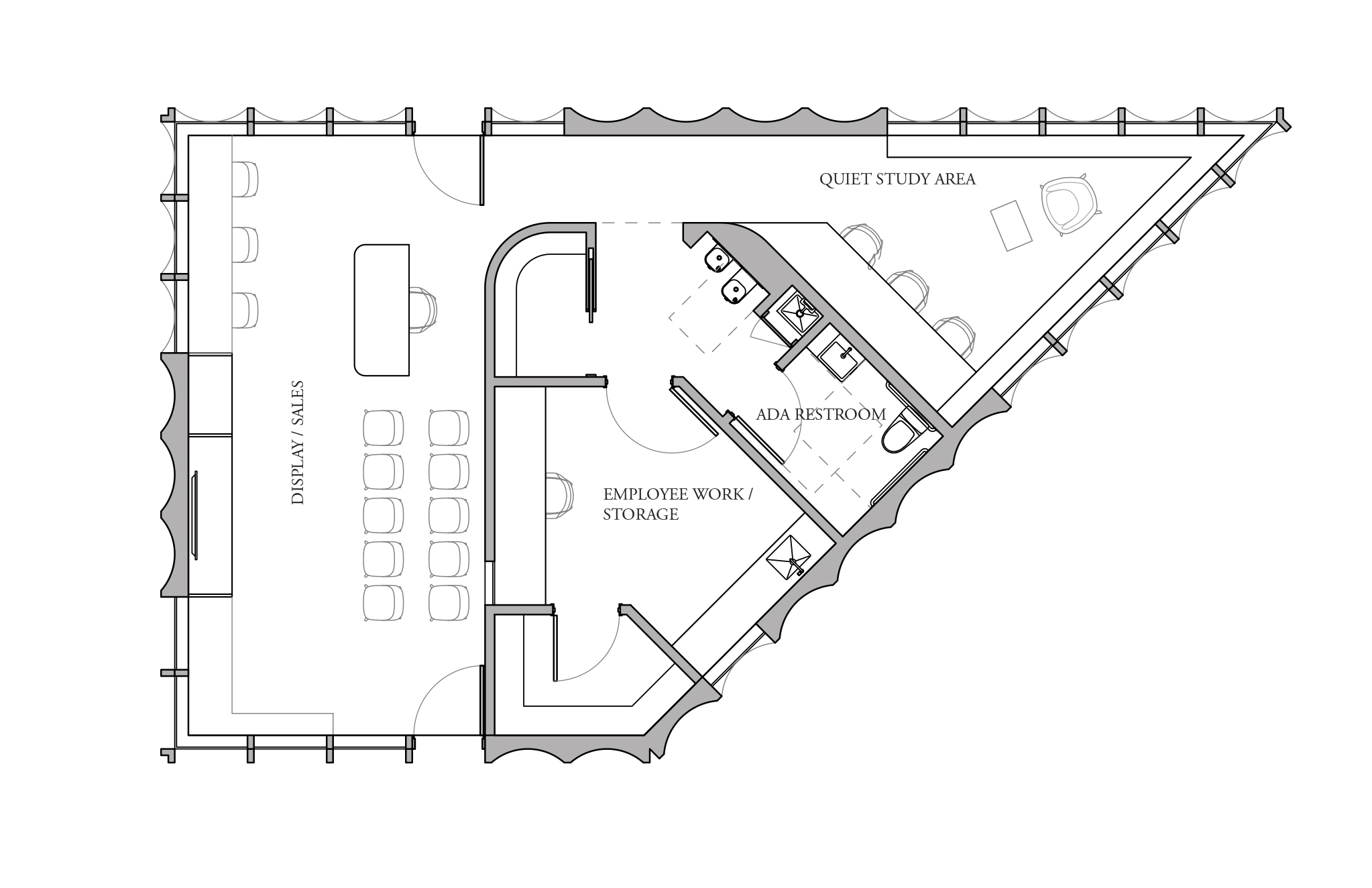
A local Austin church was looking to expand its footprint and visibility by contemplating a new multi-purpose building to be located on their existing property. This small structure needed to perform in a multitude of ways, functioning as both a bookstore and a gathering/study space, while simultaneously acting as a billboard for the church without taking away from the remarkable, existing 1951 building just beyond. Our strategy was to keep the circulation of the site intact as much as possible, maintaining the axial views to the church entrances while allowing the pedestrian thoroughfare that cuts through the site to remain. We paid homage to the existing building and its architect by utilizing the original beige brick that graces the exterior of the church, synthesizing it with the fluted wood motif that lines the interior of the auditorium space. The result is a simple form with subtle moments of playfulness which we hope shows reverence to what was, while adding a new presence and prominence for the church’s future.

Arrow_down3.jpg
 
190706_RR Diagram - Fluted wood precedent.jpg
190706_RR Diagram - Brick precedent.jpg

We paid homage to the existing building by utilizing the original beige brick that graces the exterior of the church, synthesizing it with the fluted wood motif that lines the interior of the auditorium space.

190706_RR Diagram 01 - Site.jpg
190706_RR Diagram 02 - Views.jpg
190706_RR Diagram 03 - Circulation.jpg
190706_RR Diagram 04 - Reverence.jpg

Site and program constraints drove the building’s form.

 
190818_Reading Room - floor plan.jpg
190710_AA_First Church_11.jpg
3D Diagram

Back to Work

 

© 2023 Agenda Architecture, all rights reserved.